071 740686
Italiano

Spazi ampi e comfort moderno nel cuore di Monsano


210.000 €
128 m2
Nel tranquillo contesto residenziale di Monsano, in Via Santa Maria 7/B, proponiamo in vendita un appartamento ampio e luminoso che unisce comfort, funzionalità e calore familiare. Ogni ambiente è pensato per offrire equilibrio e praticità, ideale per famiglie o professionisti che desiderano uno spazio dove vivere e lavorare con comodità.

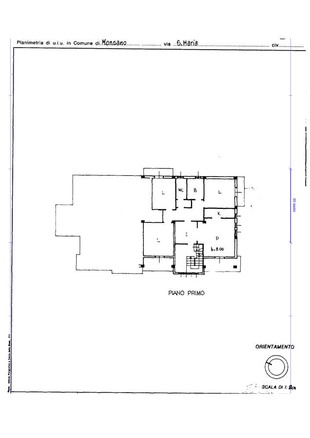
L’ingresso, spazioso e ben organizzato, conduce alla zona giorno accogliente e luminosa, servita da un balcone che garantisce luce naturale durante tutto il giorno. Il cucinino, rappresenta un ambiente perfetto per chi ama cucinare in tranquillità e condividere i pasti in uno spazio dedicato.
La zona notte è composta da due camere matrimoniali e una cameretta, tutte dotate di balcone privato, offrendo luce, aria e indipendenza a ogni ambiente. A completare la disposizione interna, due bagni – uno principale e uno di servizio – pensati per garantire il massimo comfort quotidiano.

Completano la proprietà una soffitta al piano superiore, ideale come spazio di deposito o zona multifunzione, e quattro balconi complessivi che ampliano la vivibilità della casa.
L’appartamento, di circa 130 mq commerciali, si trova al primo piano di una palazzina ben tenuta e si presenta in ottime condizioni, pronto per essere abitato.

Grazie alla distribuzione funzionale degli spazi, alla presenza di balconi e alla luminosità naturale, questa soluzione è perfetta per chi cerca un appartamento comodo, spazioso e ben organizzato. La posizione è strategica: tranquilla ma vicina ai principali servizi, scuole e attività commerciali, ideale anche per chi desidera uno studio in casa o un investimento solido.

Caratteristiche principali:
• Tipologia: Appartamento
• Indirizzo: Monsano, Via Santa Maria 7/B
• Piano: 1°
• Superficie: circa 130 mq commerciali
• Locali: Ingresso, soggiorno, cucina, 2 bagni, 2 camere matrimoniali, 1 cameretta
• Balconi: 4 (uno per ogni camera e uno nella zona giorno)
• Accessori: Soffitta al piano secondo garage e portico
• Riscaldamento: Autonomo

Se cerchi un appartamento spazioso, ben suddiviso e pronto da vivere, questa è la soluzione ideale per te.
Contattaci per maggiori informazioni o per fissare una visita: scoprirai una casa che sa accoglierti con comfort e funzionalità, nel cuore di Monsano.
Caratteristiche principali
Codice
169DM
Città
Monsano
Categoria
Appartamento
Locali
6
Mq
128
Classe energetica
G
Mappa
via Santa Maria 7/b, Monsano (AN)
Video
Planimetrie
Photo 62
Cookie preference