071 740686
Italiano

Il tuo spazio verde in un contesto tranquillo: appartamento con giardino


240.000 €
126 m2
3 Camere
2 Bagni
1 Box
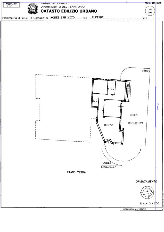
A Borghetto di Monte San Vito, in Via Alfieri 3/A, proponiamo in vendita un appartamento al piano terra rialzato con ingresso indipendente, giardino privato e garage.
L’immobile si trova in una via residenziale e tranquilla, ma allo stesso tempo vicina ai principali servizi e collegamenti, ideale per chi cerca comfort e privacy senza rinunciare alla comodità della posizione.

L’ingresso pedonale indipendente conduce direttamente alla zona giorno open space, luminosa e accogliente, con cucina a vista e ampi spazi perfetti per vivere la quotidianità in relax.
La zona notte comprende una camera matrimoniale e due camere singole, ben proporzionate e facilmente arredabili. I due bagni, di cui uno finestrato con doccia, offrono funzionalità e comfort per tutta la famiglia.
L’appartamento si distingue per la distribuzione razionale degli ambienti e per la cura generale dello stato interno, pronto da abitare senza necessità di interventi.

Il vero punto di forza è il giardino privato, comodo da gestire e completo di una zona pavimentata ideale per pranzi e cene all’aperto, perfetta per chi ama vivere gli spazi esterni in ogni stagione.
Dal giardino si accede anche al garage, che dispone di un comodo doppio accesso: sia pedonale che dal passo carrabile.

Soluzione ideale per chi cerca un appartamento con giardino e ingresso indipendente, perfetto per famiglie, coppie o chi desidera vivere in un contesto riservato ma vicino a tutti i servizi.

Caratteristiche principali:
• Tipologia: Appartamento con giardino
• Località: Monte San Vito, frazione Borghetto – Via Alfieri 3/A
• Piano: Terra rialzato
• Superficie: 126mq commerciali
• Locali: Soggiorno con cucina a vista, 3 camere, 2 bagni
• Giardino: Privato con zona pavimentata
• Garage: Con accesso dal giardino o dal passo carrabile 40mq commerciali
• Ingresso: Indipendente pedonale
• Riscaldamento: Autonomo
• Stato immobile: Ottimo, pronto da abitare
• Contesto: Tranquillo e residenziale, vicino ai servizi

Se cerchi una casa accogliente, con giardino privato e tutti i comfort di un appartamento moderno, questa è la soluzione ideale.
Contattaci per maggiori informazioni o per fissare una visita: scoprirai un ambiente curato, funzionale e pronto ad accoglierti.
Caratteristiche principali
Codice
171DM
Città
Monte San Vito (Borghetto)
Categoria
Appartamento
Locali
5,5
Camere
3
Bagni
2
Mq
126
Box
1
Mq Box
45
Classe energetica
G
195,5
Stato Immobile
Buono
Posizione
Centro
Panorama
Vista Giardino
Orientamento
Est Nord Ovest
Lati Liberi
3
Giardino
Privato
Tipo Soggiorno
Doppio
Tipo Cucina
Angolo Cottura
Riscaldamento
Autonomo
Acqua Calda
Caldaia
Raffrescamento
Split
Infissi
Legno Doppio Vetro
Serramenti
Buono
Persiana
Persiana Legno
Pavim. Giorno
Gres Porcellanato
Pavim. Notte
Gres Porcellanato
Pavim. Cucina
Gres Porcellanato
Pavim. Bagno
Gres Porcellanato
Pavimento
Gres Porcellanato
Tipo Saracinesca
Elettrica
Appartamenti
Uno
Accessori
Aria Condizionata, Armadio a Muro, Cancello Elettrico, Doppi Vetri, Passaggio Automobilistico, Passaggio Pedonale, Porta Blindata, Veranda
Mappa
via Alfieri 3, Monte San Vito (AN)
Video
Planimetrie
Photo 66
Cookie preference