071 740686
Italiano

Il tuo spazio di comfort nel cuore di Monsano


110.000 €
116 m2
Nel tranquillo contesto residenziale di via Santa Maria 7/B a Monsano, ti attende un appartamento che unisce comfort, luminosità e funzionalità. Un luogo accogliente e ben distribuito, ideale per chi desidera vivere in una zona servita ma riservata, perfetta sia per famiglie che per professionisti alla ricerca di un ambiente comodo e versatile.

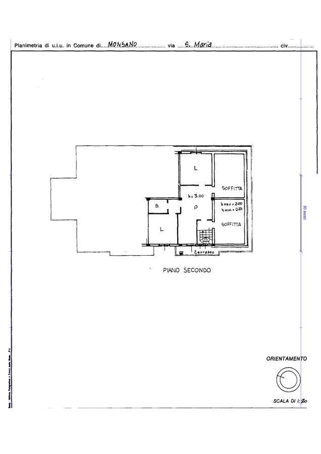
L’ingresso si apre su una zona pranzo soggiorno accogliente e ben illuminata, servita da un ampio ripoostiglio e lavanderia. Da qui si accede al terrazzo, ideale per trascorrere momenti di relax all’aperto.
La zona notte è composta da due camere doppie di generose dimensioni, pensate per garantire il massimo comfort. Il bagno con doccia offre praticità e benessere quotidiano.

A completare la proprietà troviamo un posto auto di proprietà che aggiunge valore e comodità all’abitazione.

La disposizione degli ambienti è equilibrata e funzionale, con spazi ben sfruttati e dettagli curati che rendono l’abitazione pronta da vivere. Con una superficie commerciale di circa 116 mq, l’appartamento offre metrature ideali per chi cerca ambienti ampi e facilmente personalizzabili.

Questa soluzione rappresenta la scelta perfetta per chi desidera vivere in un contesto tranquillo ma vicino a tutti i principali servizi. Ideale per famiglie, coppie o professionisti che desiderano organizzare un home studio, grazie alla presenza di stanze spaziose e luminose.


Caratteristiche principali:
• Tipologia: Appartamento
• Località: Monsano – Via Santa Maria 7/B
• Piano: Secondo
• Superficie: Circa 116 mq commerciali
• Locali: Soggiorno, cucinino, 2 camere doppie, 2 bagni (uno con doccia, uno con vasca)
• Pertinenze: Soffitta sottotetto con accesso interno, posto auto di proprietà
• Terrazzo: ideale per momenti di relax
• Riscaldamento: Autonomo
• Esposizione: Luminoso e ben arieggiato


Se cerchi un appartamento luminoso, spazioso e ben distribuito a Monsano, questa è la soluzione perfetta per te.
Contattaci subito per maggiori informazioni o per fissare un appuntamento di visita.
Caratteristiche principali
Codice
170DM
Città
Monsano
Categoria
Appartamento
Locali
4,5
Mq
116
Classe energetica
G
Mappa
via Santa Maria 7/b, Monsano (AN)
Planimetrie
planimetria
Cookie preference