071 740686
Italiano

Ampio locale con più ingressi e grande potenziale ricettivo nel centro storico di Agugliano


160.000 €
133 m2
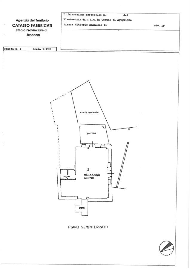
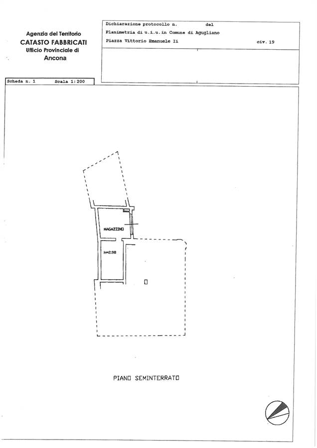
Nel cuore del borgo storico di Agugliano, proponiamo in vendita un immobile di 170 mq commerciali che si distingue per versatilità, ampi spazi e accessi indipendenti, caratteristiche ideali per realizzare una struttura ricettiva o un’attività ristorativa di charme.

La proprietà, con quattro ingressi autonomi affacciati sul cortile comune, si compone di tre unità comunicanti che offrono molteplici possibilità di utilizzo e personalizzazione.

La parte principale si apre su un ampio salone open space con due ingressi separati, oggi indiviso ma facilmente modulabile per creare zone dedicate alla ristorazione, spazi comuni o reception. All’interno dello stesso ambiente è già presente un bagno di servizio.

Un portico coperto arricchisce uno dei due ingressi principali, offrendo un’area esterna ideale per accogliere gli ospiti o allestire tavoli all’aperto. Accanto al portico si trovano due locali aggiuntivi, perfetti come magazzino o per la realizzazione di ulteriori camere con bagno privato, nel caso di un progetto di B&B o affittacamere.

Completa la proprietà un ufficio con ingresso indipendente, già dotato di bagno e facilmente trasformabile in una camera aggiuntiva o in uno studio privato.

L’immobile si presenta in buone condizioni strutturali e offre un’eccellente base per chi desidera investire in un progetto turistico o ristorativo nel centro di Agugliano, grazie alla posizione comoda, al fascino del borgo e alla distribuzione flessibile degli spazi.

Caratteristiche principali:
• Tipologia: locale commerciale / struttura ricettiva potenziale
• Località: Agugliano, borgo storico
• Superficie: 170 mq commerciali
• Ingressi: 4 indipendenti
• Locali: 3 ambienti principali più ufficio con bagno
• Bagni: 2 (con possibilità di ulteriori realizzazioni)
• Portico coperto su uno degli ingressi
• Cortile comune di accesso
• Stato: buone condizioni
• Ideale per: ristorante, b&b, studio associato o attività mista
• Prezzo di vendita: € 160.000
Caratteristiche principali
Codice
166DM
Città
Agugliano
Categoria
Negozio
Locali
8
Mq
133
Classe energetica
G
Mappa
piazza vittorio emanuele II 19, Agugliano (AN)
Video
Planimetrie
Photo 37
Photo 37
Photo 37
Cookie preference